Email:info@konsond.com
LANGUNGE
简体中文
About us
Product
Tech
News
Join us
Contact
Development course
Our value
Carbon neutral
Technical standard
Rank contrast
Thermometer
Tech
Home
> Tech
>
> ASTM A 681-2004 En
TECH
Technical standard
Standard Grade & Comparable Standards
Heat Treatment method
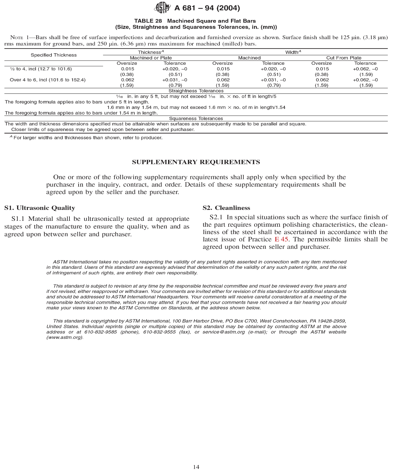
ASTM A 681-2004 En
ASTM A 681-2004 En
If you are interested in our products and want to know more details,please leavamessage here,we will reply as soon as we can.
Contact Us
Address:2#Building, P5 zone Quan Shui,Ganjingzi,District,Dalian,China
Tel:
+86- 411-39641370 F
Whatsapp:
+8613391288887
Email:
info@konsond.com
Quick Links:
Friendly Links: